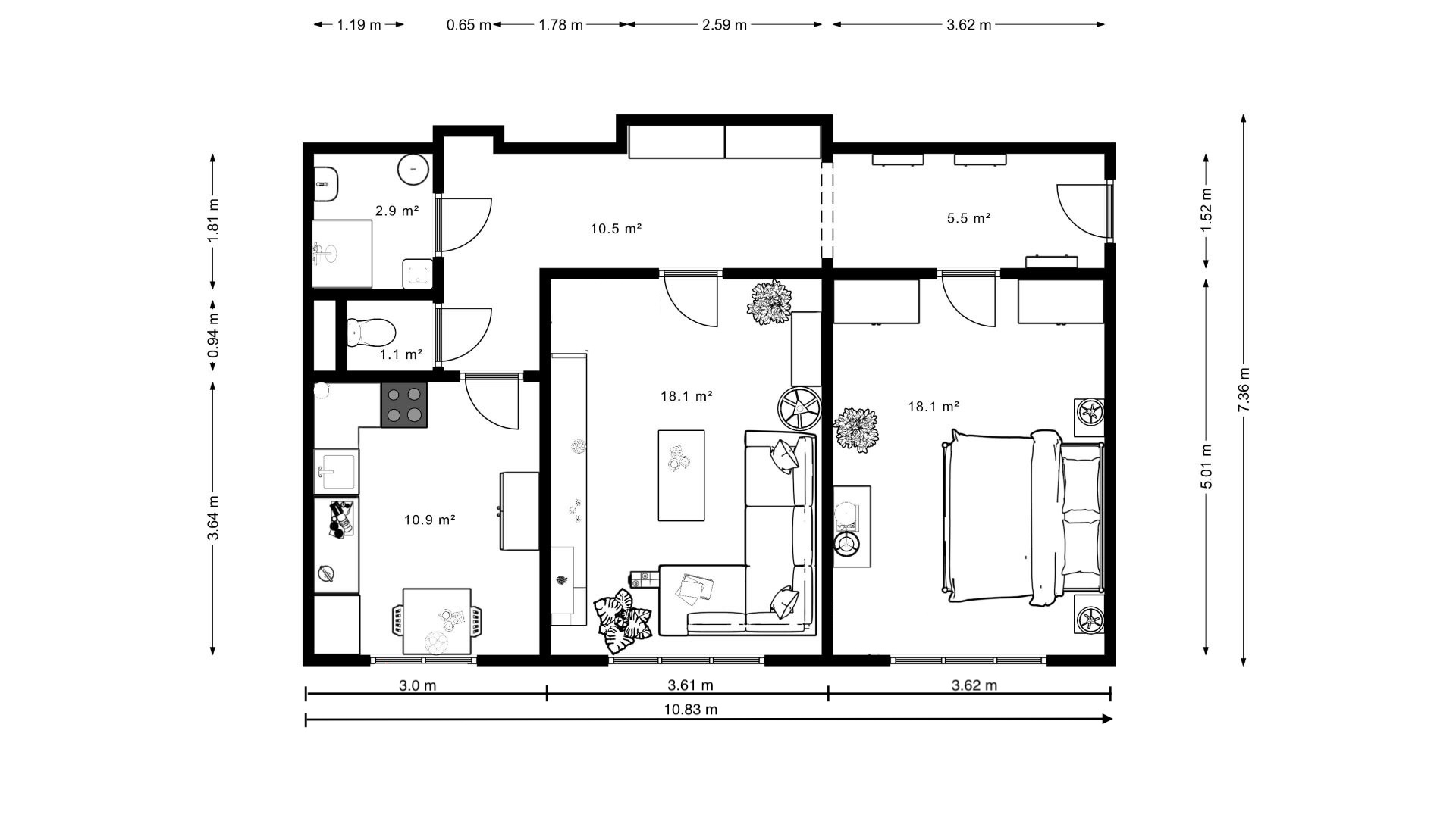
V zastoupení majitele si vám dovoluji představit prostorný byt o dispozici 2+1 a celkové výměře 65 m², který se nachází ve 3. patře cihlového domu v klidné části Prahy 4 – Krč.
Byt prošel částečnou rekonstrukcí v podobě výměny rozvodů elektřiny a vody, díky čemuž postačí již jen méně nákladná modernizace interiéru podle vašich představ. Koupelna je zděná, v původním, avšak udržovaném stavu. Dispozice bytu je velmi praktická: samostatná kuchyně, neprůchozí obývací pokoj a ložnice, koupelna s oddělenou toaletou a prostorná předsíň s úložnými prostory.
K bytu náleží sklepní kóje v suterénu domu.
Celkové měsíční náklady činí 5.298 Kč + elektřina.
Samotný bytový dům je velmi dobře udržován a dlouhodobě spravován aktivním společenstvím vlastníků. Výhodou je také vlastní kotelna, která zajišťuje efektivní vytápění celého objektu a solární panely na střeše, přispívající ke snížení provozních nákladů domu.
Byt se nachází v oblíbené a velmi dobře dostupné lokalitě v docházkové vzdálenosti od stanice metra Budějovická (linka C). V bezprostředním okolí naleznete veškerou občanskou vybavenost: obchody, poštu, lékárnu, zdravotní středisko, školy i školky.
Velkou výhodou je vynikající dopravní dostupnost metra, autobusové zastávky i napojení na hlavní dopravní tepny. Pro relaxaci a volnočasové aktivity potěší nedaleký Krčský les a cyklostezka podél Vltavy.
V případě zájmu vám rádi pomůžeme zajistit výhodné financování formou hypotečního úvěru prostřednictvím našeho hypotečního specialisty, který se skvěle orientuje v aktuální nabídce trhu a připraví řešení na míru.

Realitám se věnuji od roku 2014. Mám zkušenosti s celým životním cyklem nemovitostí a to od projektů přes výstavbu až po jejich prodej a správu. Od roku 2018 se plně specializuji na zprostředkování prodeje a pronájmu, především rezidenčních a rekreačních nemovitostí. Každý obchod řeším individuálně, s důrazem na přípravu, prezentaci a otevřenou komunikaci.
Hledáte spolehlivého makléře? Ozvěte se – rád vám pomohu.